KIS BHundF FR Session 1 leer Jan 2024 38 bearb

Institut für Sonnenphysik (KIS),
Universität Freiburg im Breisgau

Das Institut für Sonnenphysik (KIS), betreibt Grundlagenforschung in der Astronomie und Astrophysik mit einem besonderem Schwerpunkt Sonnenphysik. Auf dem sogenannten 4. Baufeld des ehemaligen Flugplatzgeländes der Universität Freiburg, ist das neue Institut für Sonnenphysik, in unmittelbarer Nachbarschaft zum Stadionneubau des SC Freiburg situiert. Um sich als erster Baustein auf dem Baufeld behaupten zu können, greift der Entwurf auf eine in sich geschlossene Kubatur zurück. Er lässt für die weitere Bebauung des Grundstückes eine größtmögliche Flexibilität zu.

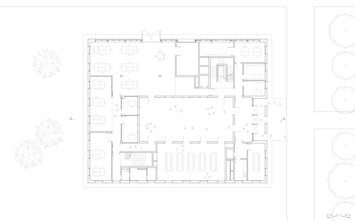
Die unterschiedlichen Funktionen des Institutes wie Büros, Labore, Werkstätten und Seminarflächen werden in einem kompakten Baukörper zusammengeführt. Hierfür wurde das Haus um ein zentrales Atrium organisiert, das über einen großzügig belichteten Luftraum alle Bereiche miteinander verbindet. Das Atrium öffnet sich im Erdgeschoss zum Eingang hin und formt so ein großzügiges Foyer. Angegliedert befindet sich der Seminarbereich, der sich zum Foyer hin erweitern lässt.
Auf der gegenüberliegenden Seite befinden sich die Werkstätten – das kreative Herzstück des Hauses. Die Obergeschosse sind offen gestaltet - alle Räume haben Bezug zur gemeinsamen Mitte. Ein um das Atrium laufender Gang verbindet die Büros der Wissenschaftler:innen und der Verwaltung mit den Laboren sowie den Besprechungsräumen. Alle Arbeitsräume sind an der Außenfassade angeordnet. Unmittelbar davor, entlang des Atriums bietet sich Raum für Pausen, Besprechungen und informelle Kommunikation.

Ein flexibles Möblierungskonzept für das Atrium sieht organisch geformte Sitzmöbel aus gefaltetem Papier vor, die einen Kontrast zum rein rechtwinkligen Raum bilden. Sonnengelb wurde als Leitfarbe für die Möblierung der öffentlichen Bereiche gewählt, als Ergänzung zu den neutral in Weiß gehaltenen Innenräumen.

Der Institutsneubau ist als Mauerwerks-Massivbau mit Stahlbetondecken ausgeführt. Die Fensteröffnungen in der gemauerten, tragenden Außenhülle erhalten ein stehendes Format, entsprechend der Tektonik des Bauwerks. Eine horizontale Gliederung erhalten die Fassaden durch den Besenstrichputz sowie die nach oben geschossweise um fünf cm zunehmende Wanddicke, die durch die sinnfällige Integration der Fensterbänke die Fassadennässe gut abtropfen lässt. Um die monolithische Wirkung des Baukörpers zu stärken, sind die Fensterelemente in der Lochfassade nach innen gesetzt. Für die Absturzsicherungen an Außen- und Innenfassaden wurden feingliedrige Elemente aus stehenden Ellipsen entworfen.

Durch den kompakten Baukörper, einem Verglasungsanteil von ca. 30% und die nach Passivhausstandard geplante Gebäudehülle werden Transmissionsverluste bestmöglich reduziert. Auf dem Dach ist eine Photovoltaikanlage verortet, welche zusätzlich elektrische Energie für den Betrieb und die Beleuchtung im Gebäude bereitstellt.


Bauherr: Vermögen & Bau BW, Amt Freiburg
Planung und Realisierung: 2018-24
BGF und BRI: 5.260 m², 24.700 m³

Wettbewerb 2018, 1. Rang

KIS BHundF aussen Okt 2024 46
KIS BHundF aussen Okt 2024 37
KIS BHundF innen moebliert Dez 24 04
KIS BHundF FR innen moebliert Dez 24 57
KIS BHundF FR innen moebliert Dez 24 38
KIS BHundF FR Session 1 leer Jan 2024 24
KIS BHundF KIS FR Session 2 leer Feb 2024 01
KIS BHundF FR innen moebliert Dez 24 15
KIS BHundF FR innen moebliert Dez 24 39
KIS BHundF FR innen moebliert Dez 24 32
KIS BHundF FR innen moebliert Dez 24 61
KIS BHundF aussen Okt 2024 55
KIS BHundF site
KIS BHundF sec aa
KIS BHundF pln EG
KIS BHundF pln OG