K96 IMG 3167

Kita Baukasten, Frankfurt am Main

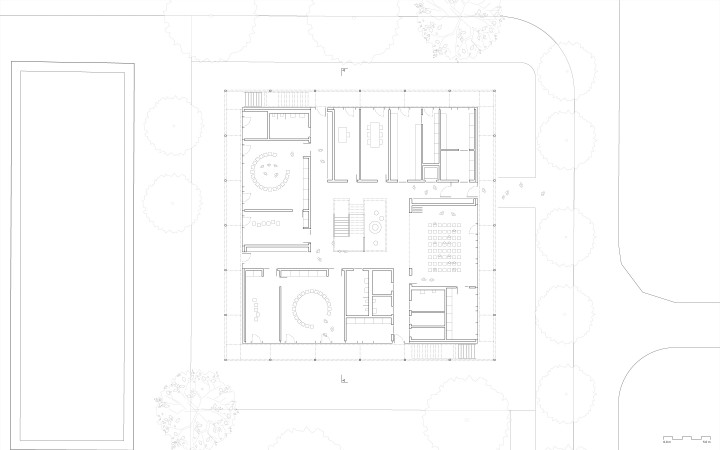
Auf Grundlage eines gewonnenen Wettbewerbs wurde für die Stadt Frankfurt am Main ein Baukastensystem für Kindertagesstätten in Passivhausbauweise entwickelt, das an insgesamt fünf verschiedenen Standorten, in Riedberg, Harheim, Fechenheim, Eckenheim-Nord und Sachsenhausen, realisiert worden ist. Die zweigeschossigen Gebäude sind konsequent als konstruktiver Holzbau auf einem Raster von 62.5 Zentimeter geplant und umgesetzt worden. Die vielfachen Vorzüge des Holzbaus kamen bei der Projektreihe in besonderem Maße zum Tragen.

Die Einrichtungen bieten Platz zur Entfaltung für jeweils 100 bis 120 Kinder im Alter von 0 bis 14 Jahren. Der zentrale „Dorfplatz“ ist dabei Dreh- und Angelpunkt aller Aktivitäten im Haus. Seine hohe Aufenthaltsqualität als Außen- im Innenraum erhält der Dorfplatz dabei durch sein ausgewogenes Raumvolumen sowie die schwebende Dachverglasung. Der Wechsel von Tages- und Jahreszeiten ist spürbar, der Trägerrost aus Brettschichtholz filtert das einfallende Licht und bestimmt die Atmosphäre in angenehmer Weise. Um den Dorfplatz gruppieren sich über zwei Geschosse windmühlenartig acht „Bausteine“, in denen die Gruppenräume wie auch die weiteren Nutzflächen untergebracht sind. Die vorgesetzte Stahlloggia dient als Übergangsraum zwischen innen und außen, in der Stützenebene ist der weitgespannte, textile Sonnenschutz angeordnet. Ganz nebenbei lassen sich mit der umlaufenden Loggia alle erhöhten Brandschutzanforderungen erfüllen.

Bauherr: Stadt Frankfurt am Main
Planung und Realisierung: 2010-14
BGF und BRI: 1.220 m², 6.360 m³ je KiTa

Wettbewerb 2009, 1. Preis
best architects 14 award

Fotos: Eibe Sönnecken, Darmstadt

K96 IMG 3181
K96 IMG 3345c
K96 IMG 3345a
K96 site 500
K96 MG 9752b
K96 MG 9688
K96 MG 0102
K96 MG 9612
K96 IMG 3520a
KSA IMG 9799a
KSA IMG 1052
KSA IMG 0770
KSA IMG 1620
KSA IMG 6741
KSA IMG 6581
KSA IMG 6024
KSA site 500
KSA sec aa 100
KSA pln EG 100
KSA pln OG 100