ZB651 05

Kita im Park, Stuttgart

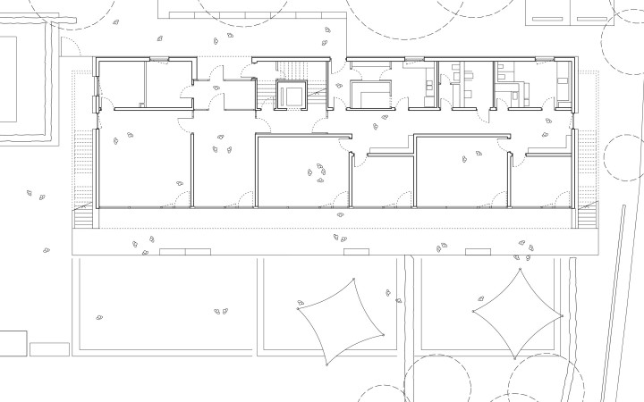
In Nachbarschaft zum Kulturpark Berg im Stuttgarter Osten liegt das Grundstück der KiTa Parkstraße. Der zweigeschossige Neubau der viergruppigen Kindertageseinrichtung fügt sich in den Grünzug mit historischen Baumbestand an der Stelle des Vorgängerbaus ein. Position, Gebäudeabmessung, Konstruktion und Materialität der KiTa leiten sich aus den besonderen Parametern des Grundstückes ab: Die Ortsbausatzung definiert die Gebäudetiefe von zwölf Metern. Position und Ausrichtung ergeben sich aus der Baulinie und dem von Westen nach Osten abfallenden Gelände. Die Gründung auf einer bestehenden Bunkeranlage im Untergrund macht einen Leichtbau aus Holz alternativlos.

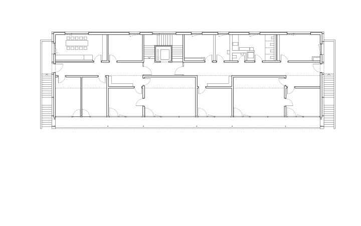
Der Haupteingang befindet sich auf der Nordseite und ist in der Fassade gut ablesbar. Das Foyer, das auch als Elterntreff dient, ist von Norden nach Süden durchgesteckt und öffnet sich zur Gartenseite. Von hier aus wird der Mehrzweckraum erschlossen sowie über einen Flur die Gruppenbreiche im Süden und die Nebenräume im Norden. Allen Aufenthaltsräumen im Obergeschoss ist eine Loggia vorgelagert. Zwei Außentreppen, die sich plastisch vom Baukörper abheben, führen auf direktem Weg vom OG in den Garten mit Freispielflächen.
Die klare Gliederung des Baukörpers in eine Gruppen- und eine Nebenraumzone ist in der Ausbildung der Fassaden sowie der Dachform ablesbar. Oberlichter im Dach entlang des Flurs unterstützen den Eindruck und ermöglichen eine gute Belichtung und Belüftung des Gebäudes. Durch die innere Gliederung des Gebäudes können Sanitär- und Lüftungsinstallation auf die Nebenraumspange beschränkt werden. Hierdurch lassen sich in den Aufenthaltsräumen größere Raumhöhen realisieren und Deckenabhängungen einsparen.

Die Kindertagesstätte ist als konstruktiver Holzbau mit mittlerem Vorfertigungsgrad konzipiert. Das geringere Gewicht des Holzbaus ermöglicht die Errichtung des Gebäudes auf dem darunterliegenden Luftschutzbunker. Die aufgehende Konstruktion der Kindertagesstätte besteht aus flächigen Bauteilen aus Holz. Die Außenwände machen sich alle Vorteile einer Holzrahmenbaukonstruktion mit hinterlüfteter Fassadenbekleidung zu eigen. Die rote Farbe der Holzschalung macht das Gebäude im Kontrast zum Grün des Parks sichtbar und nimmt Bezug zu den roten Fensterläden der benachbarten Raitelsbergsiedlung aus dem Jahr 1928.

Bauherr: Stadt Stuttgart
Planung und Realisierung: 2016-20
BGF und BRI: 965 m², 4.020 m³

DAM Preis 2022, Nominierung
Holzbaupreis Baden-Württemberg 2022, Engere Wahl
best architects 22 award
BDA Hugo-Häring-Landespreis 2021
Deutscher Architekturpreis 2021, Anerkennung
BDA Hugo-Häring-Auszeichnung 2020

Fotos: Zooey Braun, Stuttgart

KTP BHundF site
ZB651 02
KTP BHundF pln EG
KTP BHundF pln OG
ZB651 04
ZB651 19
ZB651 28
ZB651 30
ZB651 22
ZB651 08
ZB651 03 1
ZB651 10
ZB651 01 2