Eichenplatzgrundschule und Kindertageseinrichtung, Ulm
Der Neubau einer zweizügigen Grundschule mit Gymnastikraum sowie einer viergruppigen Kindertageseinrichtung ersetzt das Schulgebäude am Eichenplatz, das nach ausführlicher Prüfung nicht mehr ertüchtigt werden kann. Das Planungsgebiet wird im Norden durch Wohnnutzung und im Süden und weitläufigen Grünzug begrenzt. Die neue Grundschule schließt das Grundstück nach Osten ab, der Neubau der Kindertagesstätte erfolgt im südlichen Teil des Areals. Die Neubauten und die bestehende Gymnastikwiese rahmen die neue befestigte Pausenfläche, die Erschließung erfolgt über die Eichengrundstraße im Westen.
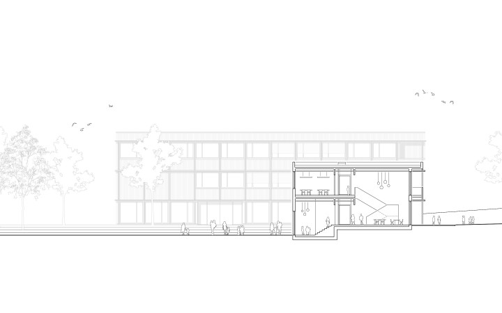
Der Neubau der Grundschule ist als dreigeschossiger Baukörper mit Teilunterkellerung für die Technik geplant. Ein wettergeschützter Rücksprung auf der Westseite markiert den Haupteingang. Das Foyer im Erdgeschoss ermöglicht einen Blickbezug über die gesamte Gebäudetiefe zum Baumbestand auf der Ostseite. Nördlich des Foyers befindet sich die Mensa. Direkt über der Mensa ist der zweigeschossige Gymnastikraum angeordnet. Verwaltungsbereich und Räume für die Nachmittagsbetreuung befinden sich im Erdgeschoss. Über einen großzügigen Treppenraum gelangt man in die Obergeschosse, die vier Klassencluster aufnehmen. Den Unterrichtsräumen ist eine großzügige bespielbare Zone vorgelagert, jede Klassenstufe erhält eine gemeinsame Mitte.
Die zweigeschossige Kindertagesstätte wird im Norden über ein tiefergelegenes Halbgeschoss erschlossen. Das Foyer erstreckt sich bis zum zweigeschossigen Essbereich im Erdgeschoss, welcher neben der Treppe als Verbindungselement im Gebäude dient und einen Blickbezug über die gesamte Gebäudetiefe zum Garten ermöglicht. Der Mehrzweckraum und der Personalbereich befinden sich im westlichen Gebäudeteil. In der Südspange befinden sich die Gruppenräume, denen ein dreiseitig umlaufender Balkon vorgelagert ist. Dieser verschattet die Südfassade und erweitert den Innenraum nach außen.
Beide Neubauten sind in ihrer räumlichen und geometrischen Ordnung konsequent als Holzbau entwickelt worden. Die gewählte Skelettbauweise ermöglicht eine hohe Nutzungsflexibilität. Die vertikale Lastabtragung erfolgt überwiegend über Stützen aus Brettschichtholz. Das Deckentragwerk im Regelbereich ist als elementierte Rippendecke geplant. Bei kleineren Spannweiten kommen Brettsperrholzelemente zum Einsatz. Das Holztragwerk bleibt im Inneren überwiegend sichtbar.
Als Sonderbereiche des Schulneubaus sind die Mensa und der Gymnastikbereich mit einer trägerrostartigen Deckenkonstruktion aus Laub- und Nadelholz überspannt.
Die Außenwände sind als Holztafelbau konstruiert. Lisenen und Gesimse in der Holzfassade machen die Tragstruktur und Geschossigkeit sichtbar, sie verleihen den Neubauten eine angemessene Maßstäblichkeit.
Das Gebäude- und Energiekonzept wurden integral unter Berücksichtigung einer guten Energieeffizienz und in Anlehnung an die Passivhausqualität geplant. Die Grundlage zur Minimierung des Energiebedarfs bilden das optimierte A/V Verhältnis und die Außenhülle mit einem Verglasungsanteil unter 50 %.
Bauherr: Stadt Ulm
Planung und Realisierung: 2022-27
BGF und BRI: 4.600 m², 18.900 m³
Wettbewerb 2021, 1. Rang