MKA modell 500

Gemeindezentrum mit Kindertagesstätte
und Pfarramt, Weinheim

2013 fusionierte in Weinheim die Lukasgemeinde mit der Markusgemeinde und bildet nun die „Evangelische Gemeinde in der Weststadt“. Das Grundstück mit denkmalgeschützter Markuskirche und Glockenturm wurde von der Pfarrgemeinde als neuer Standort für die Gemeindearbeit ausgewählt.
Der Neubau für ein Gemeindehaus mit Pfarramt und Kindertagesstätte wird in einem U-förmigen Baukörper auf der Ostseite des Grundstücks positioniert. Die Setzung ermöglicht eine respektvolle Freistellung der Markuskirche und bildet einen neuen Innenhof, der dem Fassadenrelief auf der Ostseite der Kirche neue Aufmerksamkeit schenkt.

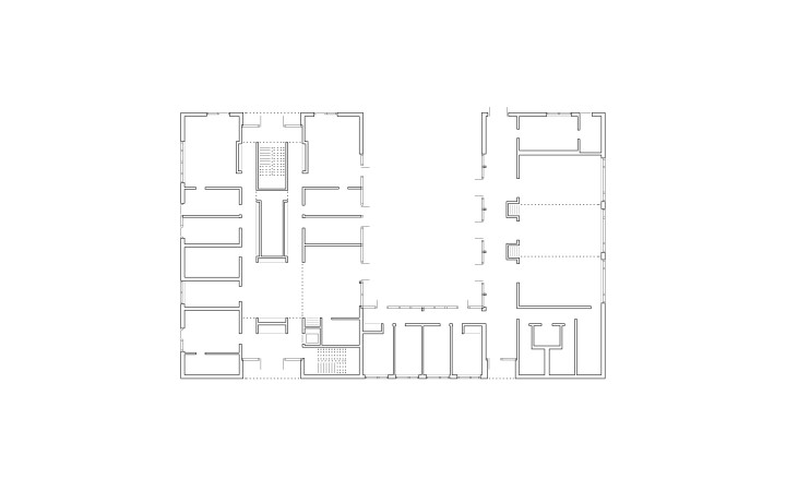
Der Haupteingang von Gemeindehaus und Pfarramt liegt auf der östlichen Seite am Ulmenweg und ist über einen Einschnitt gut in der Fassade ablesbar. Der überdachte Eingangsbereich geht direkt in die Foyers von Gemeindehaus und Pfarramt über, welche sich zum Innenhof hin öffnen. Ein direkter Übergang in den Innenhof wird über Öffnungsflügel in der Hoffassade erreicht.
In der nördlichen Spange befinden sich die Räume des Gemeindehauses mit Küche, Gemeindesaal und Nebenräumen. Der Gemeindesaal öffnet sich über eine großflächige Glasfassade zum Birkenweg hin und macht Gemeindearbeit in der Nachbarschaft sichtbar. In der östlichen Spange sind die Räume des Pfarramts mit Sekretariat, Amtszimmern und Diakon untergebracht, sie orientieren sich zum Ulmenweg hin.
Der Haupteingang der Kindertagesstätte liegt ebenfalls am Ulmenweg und wird über einen gut ablesbaren Einschnitt in der Fassade ausgebildet. Der Zugang spiegelt die innere Organisation wider, die Grundrisse sind in drei Bereiche gegliedert: eine nördliche Spange, eine eingestellte Mittelzone und eine südliche Spange. 

Der Entwurf folgt der Leitidee „Das Neue mit dem Alten“. Im Material differenziert zwischen Alt (Beton) und Neu (Holz) bilden die Baukörper zusammen ein harmonisches Ganzes mit definierten Außenräumen: Kirchhof, Gemeindehof, Kitahof. Die ondulierte Dachfläche des Neubaus nimmt in einer dezenten Gegenbewegung Bezug auf die geneigte Fläche des Kirchendaches. Die dadurch entstehende spezifische Form des Gebäudes verortet es im Zusammenhang mit der bestehenden Kirche.

Bauherr: Evang. Kirchengemeinde Weinheim
Planung und Realisierung: 2019-25
BGF und BRI: 1.650 m², 6.960 m³

Wettbewerb 2018, 1. Preis

MKA site
MKA persp aussen
MKA persp innen
MKA BHundF pln EG
MKA BHundF pln OG
MKA BHundF sec aa
MKA BHundF sec bb