DMS ES DSC9894

Dahlmannschule, Frankfurt am Main
Vierzügige Grundschule (Passivhausstandard) mit Ganztagesbetreuung, Zweifeldsporthalle und Schwimmbad

Der Neubau der Dahlmannschule ersetzt an gleichem Standort im Frankfurter Ostend einen Bestandsbau aus der Nachkriegszeit. Die Lage der Schule profitiert von dem verkehrsberuhigten Bereich der Luxemburgerallee und dem eindrucksvollen Grünzug. Der Haupteingang zur Schule wie auch zur Sport-und Schwimmhalle sind zu diesem Bereich orientiert. Das viergeschossige Schulgebäude nimmt die Traufhöhen der umgebenden Bebauung auf und besetzt selbstbewußt den Blockrand an der Rhönstraße/ Luxemburgerallee. Die neuen Schulkörper sind zueinander verschoben und definieren somit zwei Pausenhöfe. Der nördliche ruhige Pausenhof erhält seine Identität durch den in seiner Größe beeindruckenden Bestandsbaum. Der zweite Pausenhof für Spiel und Sport besitzt eine direkte Blickbeziehung zum Spielplatz in der Luxemburgerallee. Das Grundstück wird durch die Setzung des Sport- und Schwimmhallengebäudes nach Süden abgeschlossen. Die versetzte Anordnung wie auch die logische Aufteilung in drei Baukörper unterstützen die maßstäbliche Einfügung des Schulkomplexes in das Stadtgefüge. Jede Jahrgangsstufe hat ihren eigenen Klassenbereich. Die innere Organisation folgt somit der städtebaulichen Logik. Die vier sogenannten Klassenmodule sind im zweiten und dritten Obergeschoss des viergeschossigen Schulneubaus untergebracht. Im Erdgeschoss befinden sich der Ganztagesbereich, Cafeteria und Aula, darüber der zentrale Lehrerbereich. Alle Klassenzimmer haben freien Blick über das Stadtgebiet. Über die Treppenhäuser in den Klassenmodulen sind die beiden Pausenhöfe auf kurzem Weg erreichbar.

Konstruiert ist der Schulneubau als Hybrid – Das Primärtragwerk bildet eine Stahlbetonskelettkonstruktion, oberhalb des verglasten Sockelgeschosses ist die dreigeschossige Fassade, die Passivhausanforderungen genügen muss, als Holzrahmenbau konstruiert. Die gewählte Konstruktion ist das Ergebnis einer intensiven Abwägung aller standort- und projektspezifischen Gegebenheiten. Die Ausführung der Aussenwände als vorgehängte Holzrahmenbaukonstruktion bringt den entscheidenden Vorteil: Durch die Lage der Wärmedämmung in Ständerebene konnte der Wandaufbau gegenüber einer massiven Konstruktion deutlich reduziert werden. Im Querschnitt durch die beiden Schulbaukörper bedeutet dies einen Gewinn von rund 60 Quadratmetern Nutzfläche und die Möglichkeit, das Raumprogramm auf dem innerstädtischen beengten Grundstück umsetzen zu können.

Bauherr: Frankfurt am Main
Planung und Realisierung: 2012-17
BGF und BRI: 8.800 m², 42.600 m³

Wettbewerb 2011, 1. Preis

Fotos: Eibe Sönnecken, Darmstadt

DMS 260409 BHundF pub site 2500 gross
DMS ES DSC9338
DMS ES DSC9909
DMS 260409 BHundF pub sec aa 700 v2
DMS ES DSC9732
DMS ES DSC6659 v2
DMS ES DSC6699
DMS ES DSC6583a v2
DMS ES DSC6789
DMS ES DSC1284
DMS ES DSC1314
DMS ES DSC6804
DMS ES DSC1246
DMS ES DSC9794
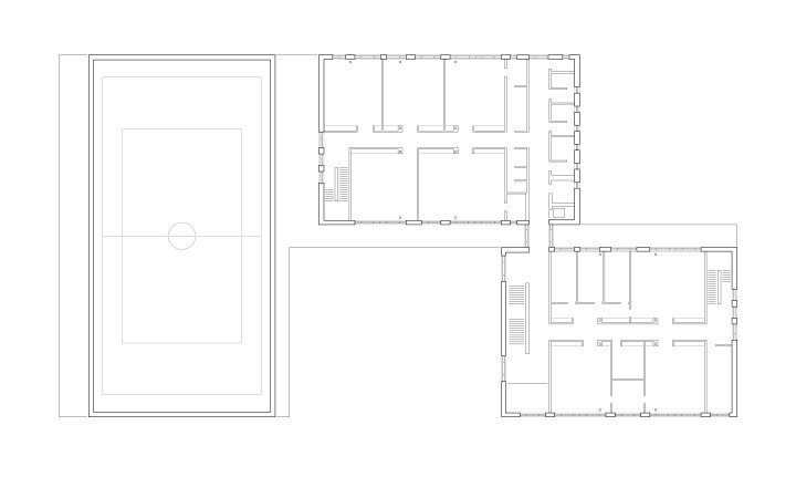
DMS 260409 BHundF pub pln EG 700
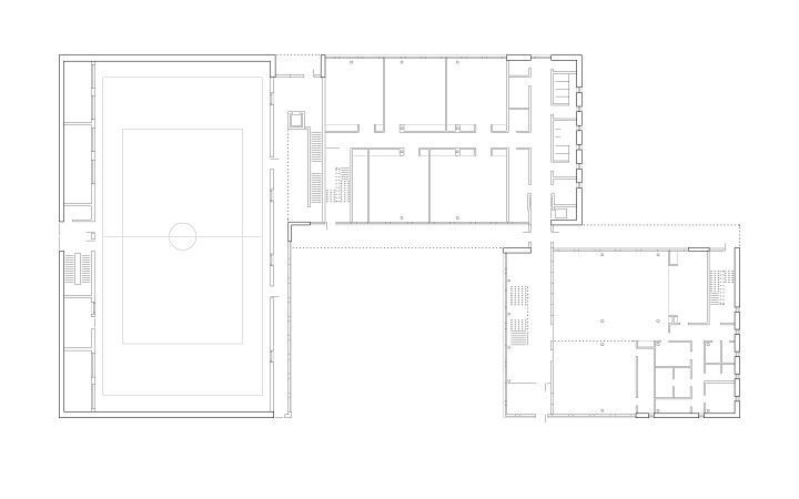
DMS 260409 BHundF pub pln OG 700
DMS ES DSC9405 2
DMS ES DSC9400
DMS ES DSC9711
DMS ES DSC9708
DMS ES DSC9619
DMS ES DSC9355